02 ARRAYCAM 5420

Fragebogen - ARRAYCAM 5420

ARRAYCAM 5420 Fragebogen

Kundeninformationen

Adresse
Kontaktperson 

Maschineninformation

Art der produzierten Ware

Warenart 
TypStoffprobe mit Fehler verfügbar?

Montageinformationen

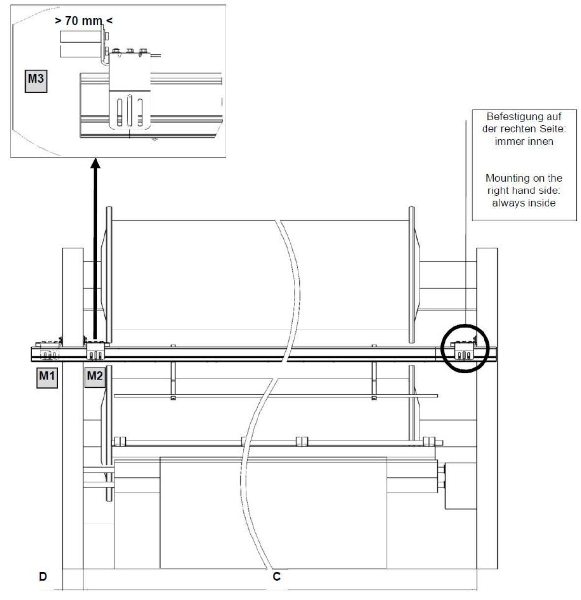
Wechselnde Fremdlichteinflüsse an der Maschine (Sonnenlicht / Schattenwurf) müssen ausgeschlossen werden, da dadurch Fehlabstellungen oder Fehlfunktionen auftreten können. Verwenden Sie als Hilfsmittel zur Bestimmung der Anbausituation bitte die Abbildung auf der nächsten Seite.
Welche Einbauposition ist für die Kameratraverse zutreffend? 
Montageposition des Steuergeräts
Befestigung auf der linken Seite

Zusätzliche Informationen

Bei Textilmaschinen, die über ein KAMCOS 1 Betriebssystem verfügen, ist es notwendig, dass der Kunde bereits vor der ARRAYCAM Montage beim Maschinenhersteller ein Anschlussinterface bestellt und montiert, da sonst die ARRAYCAM nicht in Betrieb genommen werden kann. Dieses Anschlussinterface kann leider nicht von PROTECHNA zur Verfügung gestellt werden.
Ist bereits ein PROTECHNA-Überwachungssystem auf der Maschine vorhanden?
Welches System verwenden Sie?
Ist für diese Überwachung ein Impulsgeber vorhanden?
Ist bereits eine Blaseinrichtung an der Maschine vorhanden?
Sollen die vorhandenen Laserlichtschranken an das ARRAYCAM-Steuergerät angeschlossen werden? (max. Anzahl der Laserlichtschranken = 8)
Benötigen Sie neue/zusätzliche Lichtschranken, die an das ARRAYCAM-Steuergerät angeschlossen werden sollen?

Montagesituation

ARRAYCAM 5420 form mounting situationARRAYCAM 5420 form mounting situation2